信息未审核或下架中,当前页面为预览效果,仅管理员可见
推荐房源
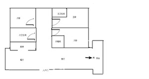
房源详情
1.户型好:房子是三房两厅的户型,南北通透,一梯两户,两房朝南,一房朝北,带朝南阳台,阳台面积都比较大。
3.采光好:,前后无遮挡,楼间距比例达到1:1,通风性能也比较好。
4.总价低:这套房子是阳新目前性价比比较高的三房,之前卖过其他楼盘同户型的房子,价格比这个要贵5-10万。
小区信息
小区详情
/
全景看房
- 满两年
- 不满两年
- 满五唯一
- 首套
- 二套
- 0元契税:
- 0元增值税:
- 0元个税:
合计0元
微信公众号
同城小程序
房产小程序
商城小程序















